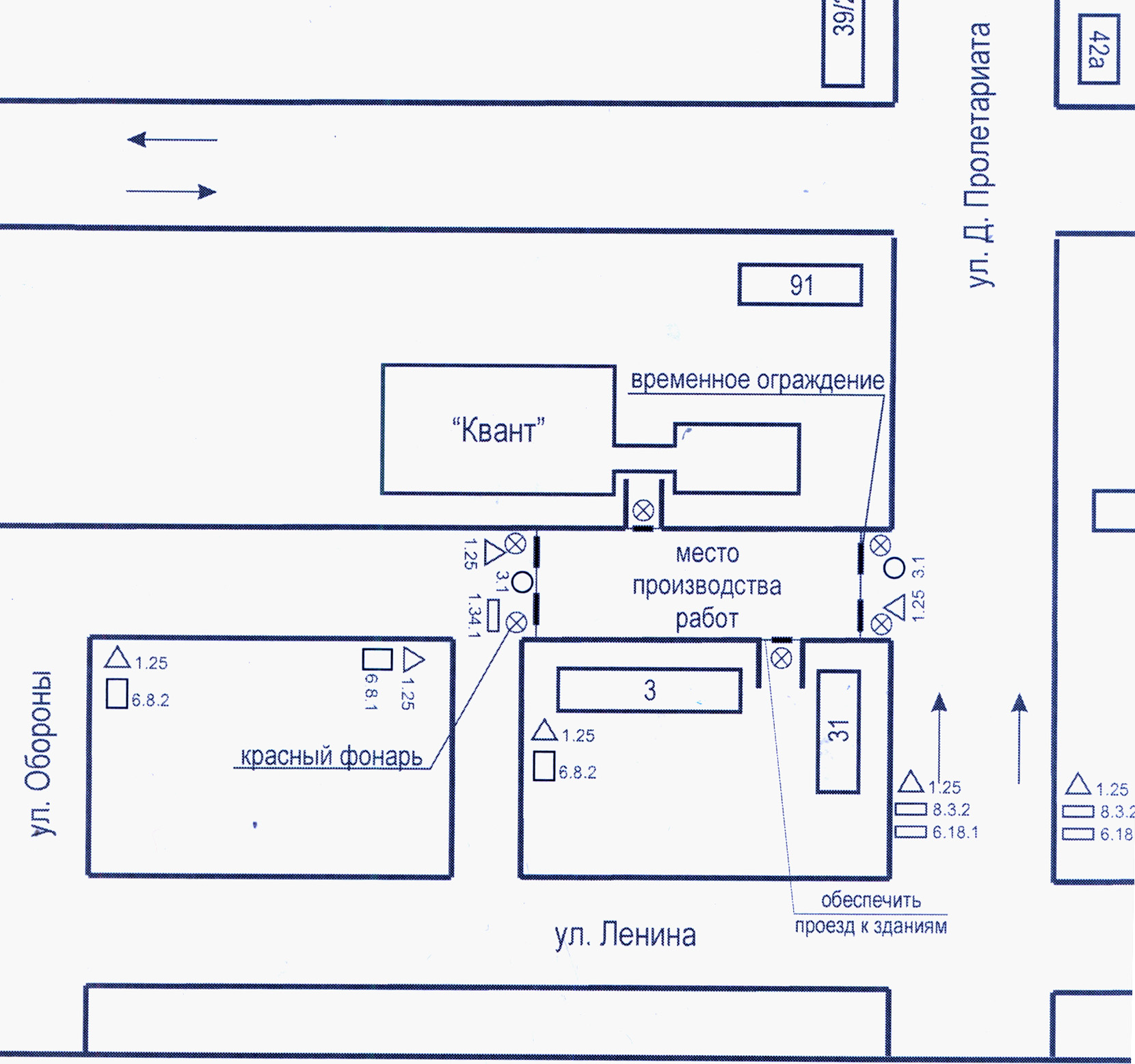
Сквозное движение транспорта по ул. Красной Армии в районе ТЦ «Квант» будет перекрыто до 10 часов утра 20-го мая.
Продление сроков капитального ремонта вызвано необходимостью полной замены не только труб, но и железобетонного канала теплотрассы, который как показало вскрытие, также имеет 100% износ.
Напомним, что в рамках подготовки к новому отопительному сезону здесь будет заменено 270 метров ветхих тепловых сетей.
Компания «КрасКом» приносит извинения за предоставленные неудобства. Ремонт теплотрассы ведет подрядная организация «Коммунальные технологии и строительство».
Схема перекрытия проезжей части ул. Красной Армии
